喷漆车间局部排风设计与污染物处理
来源: 作者: 发布时间:2016-09-25 22:12 点击数:131
工程实例 喷漆车间局部排风设计与污染物处理
导读:本文就是针对具体的工程实例,对局部排风的效果,及污染物的控制方式进行进一步探讨。设计中通风量主要来自局部排风罩,三条生产线风量大致相等,考虑经济因素,地上部分矩形镀锌钢板风道设计为风速υ=5.56m/s,风道尺寸320×250mm。
关键词:局部排风,局部排风罩,污染物处理
1.通风方式概述
工业厂房由于某些工艺流程和设备等原因,在生产过程中不可避免地会产生大量的烟尘、水汽、散发出大量余热或有毒污染物,会造成工厂员工的舒适感下降,更甚者会给人类身体带来伤害。工业通风系统的基本目的是防止员工过度暴露于有毒或有刺激性污染物的工作环境中。所以对工作环境中污染物的控制是必要的,尤其是在会产生大量对人造成严重伤害的污染物车间。
改善工厂内部空气质量,在工业通风系统上主要运用的方式有:局部通风和全面(稀释)通风。局部通风是目前公认的最有效的并被广泛采用的排除污染物的方法,已成为工业通风的发展趋势。本文就是针对具体的工程实例,对局部排风的效果,及污染物的控制方式进行进一步探讨。
2.设计实例
2.1方案的确立
依据陕西某公司提出的设计要求:对其输油管道喷漆机和喷码机厂房进行通风系统设计,以排除厂房喷漆过程中的空气污染,改善工作环境。原有的自然通风效果差,不能满足工业环境的要求。本设计针对三条输油管喷漆生产线、喷漆机和喷码机的局部通风系统及有机气体净化进行设计,由于工艺设备的设置限制,三条生产线分别独立设计。
工业通风需要考虑在不影响生产工艺操作的前提下,既要保证有害物全部排除,还要考虑风速对生产质量的影响。在喷漆机和喷码机的局部通风系统中,为工作区提供最小的不影响生产工艺的风速,同时保证通风管道布置尽量少占空间,不破坏厂房结构,不影响工人正常的操作,通风管道尽量布置于地下。同时满足环保及行业有关规范、规定的要求。
2.2局部排风系统
结合实际情况,由于工厂静音及工艺要求,要对风速进行控制。喷漆机、喷码机上集气罩控制风速为0.25m/s,地上风管控制风速为5~6m/s,地下风管控制风速为7~8m/s。
2.2.1密闭罩的设计
密闭罩是用来捕集有害物的。它的性能对局部排风系统的技术经济指标有直接影响。性能良好的密闭罩,只要较小的风量就可以获得良好的工作效果。
设计中一号、二号线密闭罩,下口面积A=1.482m2,吸入速度υ=0.25m/s,安全系数β=1.15,通风量Q=3600*A*υ*β=1534.13m3/h。三号线密闭罩,下口面积A=1.519m2,吸入速度υ=0.25m/s,安全系数β
=1.15,通风量Q=1572.17m3/h。

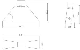
图1密闭罩剖面图
2.2.2通风管道的设计
通风管道把系统中的各种设备或部件连成了一个整体。合理选定风管中的气体流速,管路力求短、直,对提高系统的经济性有很大帮助。设计中通风量主要来自局部排风罩,三条生产线风量大致相等,考虑经济因素,地上部分矩形镀锌钢板风道设计为风速υ=5.56m/s,风道尺寸320×250mm。风量调节阀采用钢板制作。地下水泥风道设计风速υ=7.11m/s,风道尺寸250×250mm。地下混凝土风道每20~25m应设置一道伸缩缝,缝宽20~40mm,缝内用沥青填实,缝外用V形铁皮及卷材密封。地下风道的采用,有效地利用了厂房空间,不会对工人的正常工作生产产生影响。

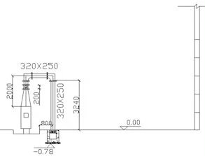
图2一号线侧视图

图3二号线侧视图

图4三号线侧视图
2.2.3净化设备
为了防止大气污染,当排出空气中的有害物超过排放标准时,必须用净化设备处理,达到排放标准后,排入大气。
喷漆涂装作业中涂料和溶剂雾化后形成的二相悬浮物逸散到周围的空气中,污染了空气。被污染空气中的漆雾的收集和分离,是对提高喷漆质量、改善喷漆环境、达到环保排放标准要求的前提。
油漆类喷涂废气,主要由两部分组成,液态的漆雾和含VOC的喷漆废气。对于液态漆雾,采用喷淋等湿法除尘,均有一定效果;但对不溶水的VOC,常见的处理方式有活性炭吸附处理和催化燃烧处理。
活性炭吸附处理的主要问题在于活性炭易于饱和,同时由于活性炭阻力较大,需要压头较高的风机,能耗大。活性炭的再生可分为两类:脱附和吸附。所谓脱附,是改变活性炭的环境至吸附质容易脱离状态的操作。一般有以下3种情况:①降低压力或者浓度;②提高温度;③使用化学药品。有时不能通过脱附再生。因此,通常使用分解的方法进行再生。方法有:①用氧化性气体进行氧化分解;②高温液相氧化分解;③用氧化剂进行液相氧化分解;④微生物分解;⑤电化学分解。按每1000克活性炭处理50吨水计算,一座日产5万吨的水厂日消耗活性炭1.0吨,每吨炭价格按8000元计算,活性炭的成本为0.16元/立方米。如能将活性炭再生使用,1吨活性炭再生费用按2000元计,每次再生后添加10%的新炭,每吨活性炭再生2~3次,每吨水用活性炭的单项成本在0.1元以下。目前应用成熟的技术应该还是活性炭吸附法。
催化燃烧法是将含有机污染物的废气,在催化剂例如铂、钯的作用下,可以在较低的温度下将废气中的有机污染物氧化成二氧化碳和水。催化燃烧处理方式虽然在一定程度上解决了活性炭饱和问题,但耗电量较高,且使用一段时间后,催化剂会中毒,同时燃烧时的能耗高,能量没有回收造成浪费。有机废气催化燃烧净化装置价格大约为4.5万,且目前常用的贵金属催化剂由于资源稀少,价格昂贵,且易中毒。。本方案不建议采用。
经以上比较决定在本设计采用活性炭吸附法。
(3)水帘式喷气机的应用(以下简称水帘机)。水帘机实际上是一台带有水帘的排风机,它具有投资少,运行费用低,使用效果好等优点。是提供喷漆作业的专用环保设备,其作用是将喷漆过程中产生的喷雾限制在一定的区域内,并得到处理。格式。它是采用以水为介质的湿式处理方法,通过水捕捉集中在喷漆作业区域内的漆雾,再对含漆雾废水进行处理,过滤后循环使用。

图5二号线风机与吸收塔连接图

图6一、三号线风机与吸收塔连接图
2.2.4风机的选择
风机向机械排风系统提供空气流动的动力。为了防止风机的磨损和腐蚀,通常把它放在净化设备的后面。一般风机选型应遵循以下原则⑴要满足使用风压和风量的要求。系统所使用的风压、风量是两个关键数值,必须经过比较准确的分析和计算。⑵根据负荷类型确定调节方案。一般分四种:高流量型、低流量型、多变流量型、间歇流量型。
考虑到管道可能漏风等原因。一般是在系统所需风量、风压的基础上乘以一个安全系数,来确定风机的风量和风压。风压偏高、风量偏大,与实际需要相差太大。不但造成了大量的能源浪费,而且往往给运行带来很大困难。格式。由前面设计计算,本设计一号线风量取1535m3/h,选型风压取291Pa,二号线风量取1535m3/h,选型风压取60Pa,三号线风量取1575m3/h,选型风压取166Pa。

表1风机特性参数:
3.结论
(1)防止工业有害物污染室内空气的最有效地方法是:在有害物产生地点直接把它们捕集起来,经过净化处理,排至室外,这种局部排风系统需要的风量小,效果好,设计时应优先考虑。
(2)密闭罩是局部排风系统的重要组成部分。设计完善的密闭罩,用较小的排风量即可获得最佳的控制效果。
(3)通风管道系统的设计直接影响到通风空调系统的使用效果和技术经济性能。地上风管高度要满足风管下面车辆及产品构件经过的高度。地下风道的设计有效地利用了厂房空间,不会对其他设备运行造成不便。但由于叉车等重型物体要经过地下风道,风道盖板要进行配筋设计,以满足所需承载量。
(4)有害气体的净化方法主要有四种:燃烧法、冷凝法、吸收法和吸附法。目前比较成熟的技术还是活性炭吸附法。水帘机具有投资少,运行费用低,使用效果好等优点,很受生产企业欢迎。
参考文献:
[1]陆耀庆.供暖通风设计手册[M].北京:中国建筑工业出版社,1987.
[2]建筑工程常用数据系列手册编写组.暖通空调常用数据手册[M]中国建筑工业出版社,第二版2002
[3]孙一坚.工业通风[M]中国建筑工业出版社,第三版2003
[4]郑文亨刘加平王怡.工厂有害物质吹吸通风控制的原理分析[J]流体机械.Vol.36,No.08,2008
[5]张禾.喷漆废气废漆渣的估算及处理措施[J]汽车工艺与材料.2006-08-30
[6]AntonioC.Caputo,PacificoM.Pelagagge.Upgradingmixedventilationsystemsinindustrial
conditioning[J].AppliedThermalEngineering29(2009)3204–3211
[7]Pierre-SylvainMirade,LaurentPicgirard.Improvementofventilationhomogeneityinan
industrialbatch-typecarcasschillerbyCFDinvestigation[J].FoodResearchInternational39(2006)871–881
(版权归原创作者所有!)
无锡市百箭商贸有限公司·







